PyR Administración y Proyectos

Remodelación ciclo-estacionamiento TULTITLÁN 

Circuito Exterior Mexiquense (CEM)

Ubicación: Estado de México

Imagen objetivo remodelación Ciclo Estación Tultitlán

Vista 3D fachada Ciclo Estacionamiento

Propuesta arquitectónica 3D remodelación Ciclo Estación

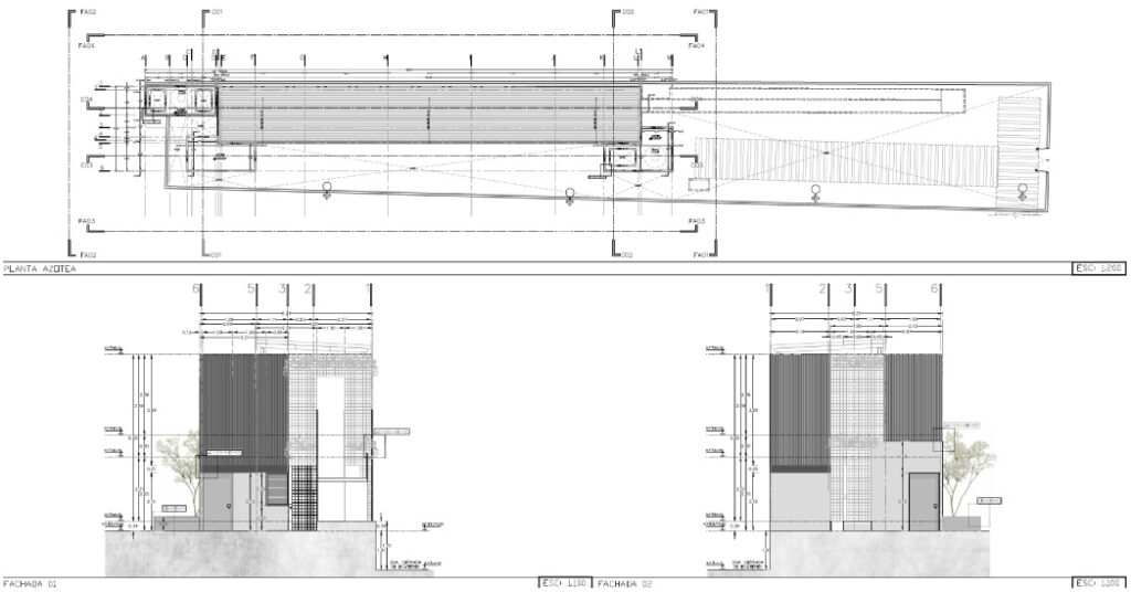
Planos arquitectónicos remodelación Ciclo Estación

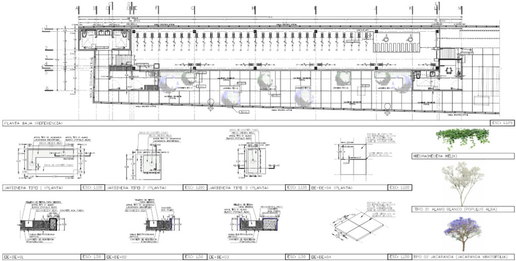
Planos de obras exteriores remodelación Ciclo Estación

Planos de instalaciones hidráulicas remodelación Ciclo Estación

Planos de instalaciones sanitarias​ remodelación Ciclo Estación

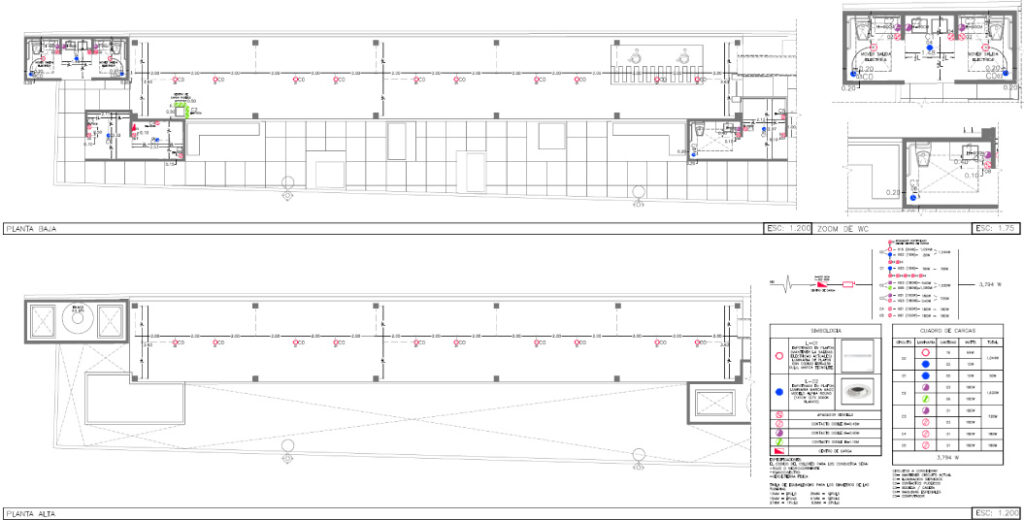
Planos de instalaciones eléctricas remodelación Ciclo Estación